gkhe – büro- und wohngebäude / kontorhaus essen
Neubau eines Büro- und Wohngebäude mit 2-geschossiger Tiefgarage
Bauherr
Dr. Helmut Greve Bau- und Boden AG
Ort
Schwanenkampstraße 50-58
245127 Essen
Leistungen
- LPH 5 & Teilleistungen LPH 3 (HOAI § 15)
- Plancheck und Entwicklung von Optimierungen
- Visualisierung
lage
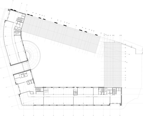
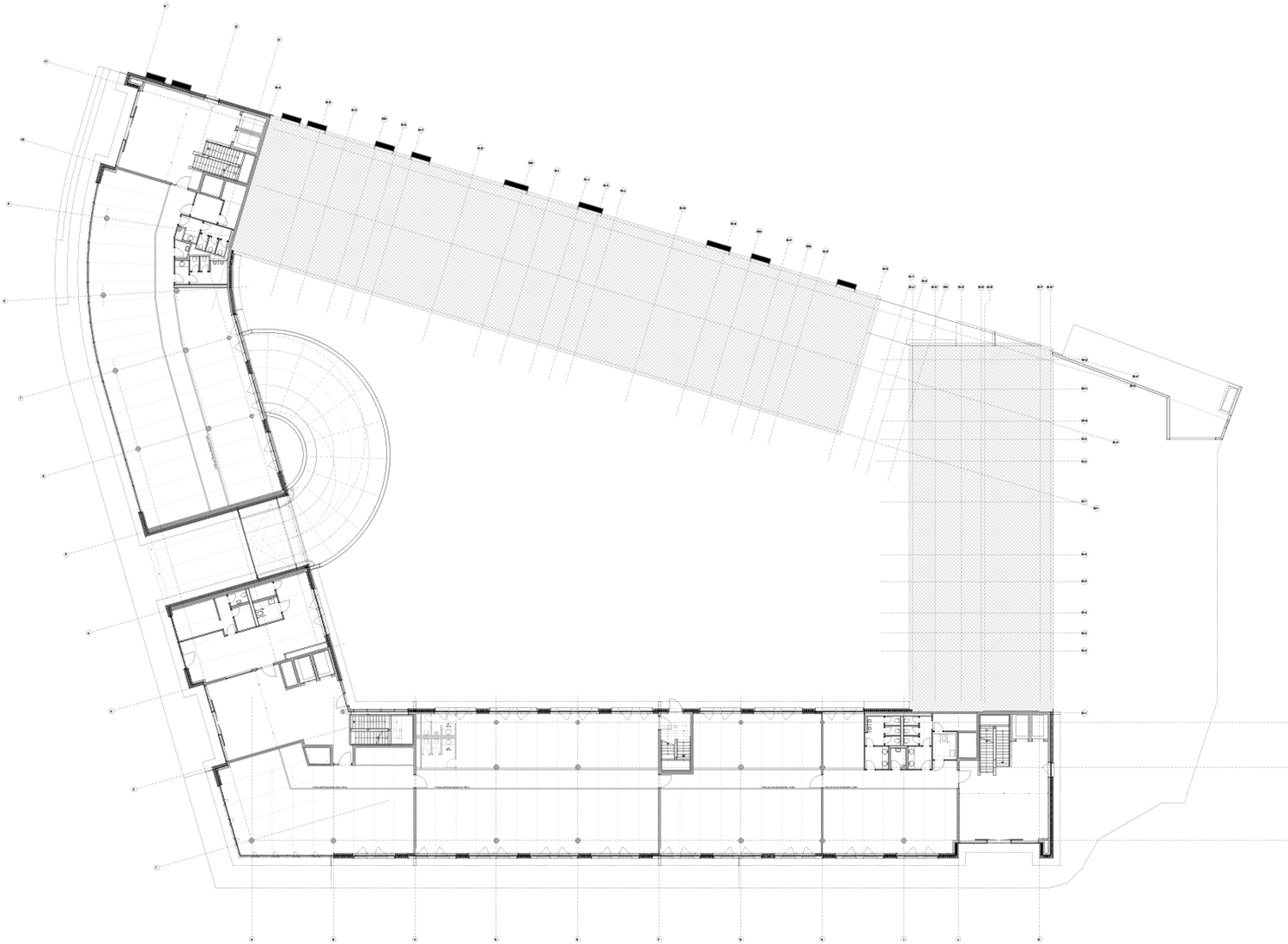
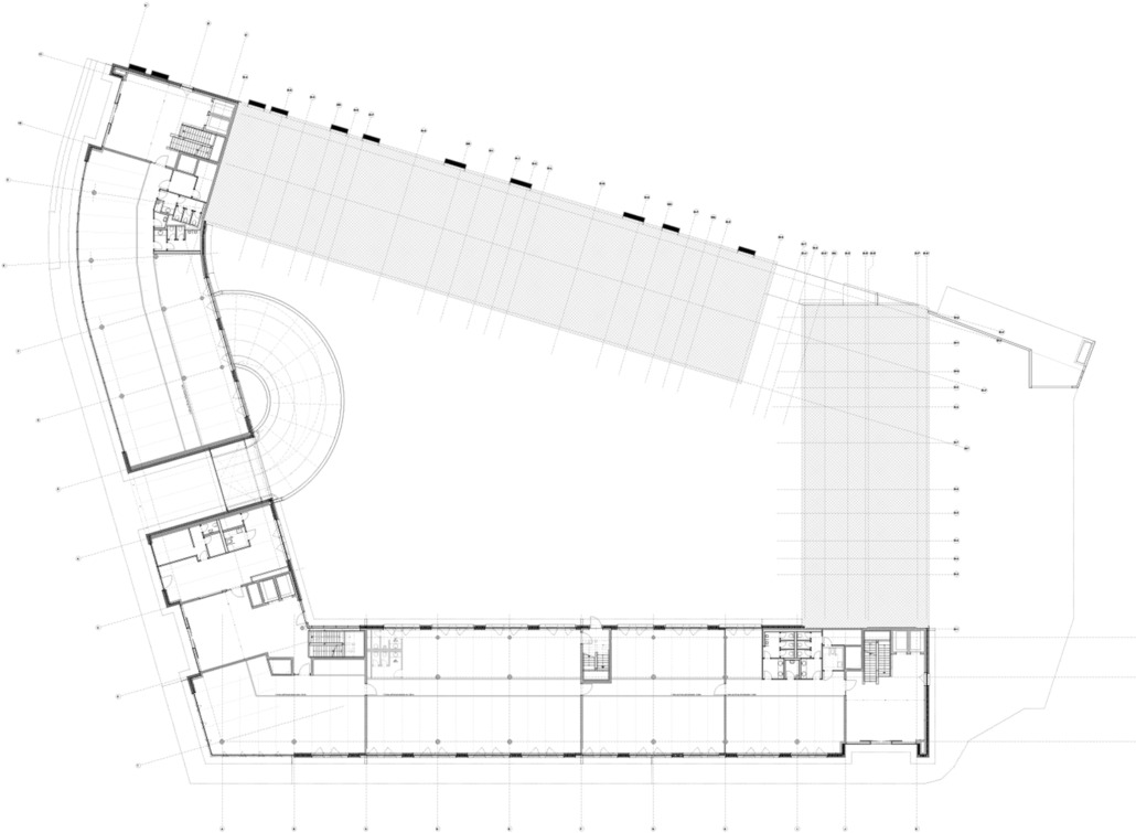
Der Neubau des Kontorhauses steht im Kontorhausviertel in der Essener Weststadt, auf einem ehemaligen Industrieareal des Siemens-Geländes westlich der Innenstadt. Das Projektgebiet erstreckt sich zwischen der Hans-Böckler-Straße, der Frohnhauser Straße und der Schwanenkampstraße auf einer rund 35.000 m² großen Fläche. Diese Lage zeichnet sich durch eine gute Anbindung an den städtischen Verkehr aus und liegt in unmittelbarer Nähe zur innerstädtischen Infrastruktur, was den Standort sowohl für Büros als auch für Wohnen attraktiv macht.
konzept und gestaltung
Das Kontorhaus ist Teil eines umfangreichen städtebaulichen Projekts, dem Kontorhausviertel, das moderne Arbeits-, Wohn- und Freizeitnutzungen miteinander kombiniert. In mehreren Bauabschnitten entstehen dort bis zu 60.000 m² hochflexible Büroflächen, ergänzt um Wohnungen, ein Hotel und Nahversorgungsmöglichkeiten. Der Auftakt bildet das sogenannte Kontorhaus Ost, das sowohl Büro- als auch Wohnflächen umfasst
Architektonisch setzt der Neubau auf eine zeitgemäße Gestaltung mit großen Fensterflächen und hochwertigen Materialien, die flexible Raumstrukturen und lichtdurchflutete Innenräume ermöglichen. Die Fassadengestaltung ist so konzipiert, dass sie eine moderne städtische Identität schafft und gleichzeitig einen angenehmen Maßstab für das Umfeld bildet. Die Gebäude des Kontorhausviertels werden in ein durchdachtes städtebauliches und landschaftliches Konzept eingebettet, das Innenhöfe und Grünflächen vorsieht und zur urbanen Qualität des Quartiers beiträgt.
Besonders wichtig ist auch der nachhaltige Aspekt des Bauens: Die Ausführung erfolgt als moderne energieeffiziente Bauweise, mit angestrebter Zertifizierung nach aktuellen Effizienz- und Nachhaltigkeitsstandards sowie einer zweigeschossigen Unterkellerung für die Tiefgarage und technische Infrastruktur.
nutzung
Die Nutzung des Neubaus ist gemischt und flexibel ausgelegt: Das Kontorhaus Ost bietet rund 11.000 m² moderne Büroflächen mit einer hohen gestalterischen und funktionalen Flexibilität – vom klassischen Einzelbüro bis hin zu offenen Open-Space-Konzepten. Die Raumaufteilung der Büroflächen kann je nach Bedarf der Nutzer gestaltet werden, um verschiedenen Arbeitswelten gerecht zu werden.
Ein wichtiger Nutzer steht bereits fest: Die Stadt Essen wird einen bedeutenden Teil der Büroflächen für ihren Fachbereich Immobilienwirtschaft nutzen, was einen zentralen Bezug zwischen Stadtverwaltung und urbanem Quartier schafft.
Neben den Büroeinheiten entstehen im gleichen Gebäude auch 104 Wohnungen in verschiedenen Größen, wodurch das Kontorhaus nicht nur ein reiner Arbeitsort, sondern ein lebendiger urbaner Baustein im Stadtteil wird, der auch zum Wohnen und Leben einlädt.









